Modified Bituminous Sheet Waterproofing
Modified Bituminous Sheet Waterproofing - This section specifies modified bituminous sheet material used for exterior below grade waterproofing and split slab waterproofing.
This section specifies modified bituminous sheet material used for exterior below grade waterproofing and split slab waterproofing.
This section specifies modified bituminous sheet material used for exterior below grade waterproofing and split slab waterproofing.
What is bituminous waterproofing? by Motherbuildcare Medium
This section specifies modified bituminous sheet material used for exterior below grade waterproofing and split slab waterproofing.
Modified Bitumen Roofing The Complete Guide
This section specifies modified bituminous sheet material used for exterior below grade waterproofing and split slab waterproofing.
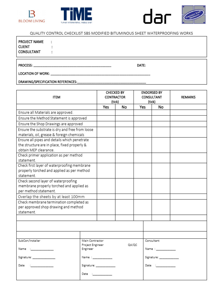
CHECKLIST FOR SBS Modified Bituminous Sheet Waterproofing Works PDF
This section specifies modified bituminous sheet material used for exterior below grade waterproofing and split slab waterproofing.
ITP FOR SBS Modified Bituminous Sheet Waterproofing Works PDF
This section specifies modified bituminous sheet material used for exterior below grade waterproofing and split slab waterproofing.
CHECKLIST FOR SBS Modified Bituminous Sheet Waterproofing Works PDF
This section specifies modified bituminous sheet material used for exterior below grade waterproofing and split slab waterproofing.
Integral Waterproofing Solution BelowGrade Concrete Structures
This section specifies modified bituminous sheet material used for exterior below grade waterproofing and split slab waterproofing.
Bitumen Membrane Sheet Iran Bitumen Roll sheet Bitumen Roof Sheet
This section specifies modified bituminous sheet material used for exterior below grade waterproofing and split slab waterproofing.
Sbs APP Sheet Modified Bituminous Asphalt Bitumen Waterproofing Roofing
This section specifies modified bituminous sheet material used for exterior below grade waterproofing and split slab waterproofing.
Sika SikaBit S60 (60 MIL) Modified Bituminous Sheet Waterproofing
This section specifies modified bituminous sheet material used for exterior below grade waterproofing and split slab waterproofing.





